
小戶型結構PK
地點:一號橋
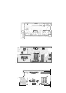
面積:24.57平方米
優點:帶落地窗
缺點:暗衛
居住在一號橋的讀者劉先生向記者爆料,他所居住的小區內有不少小戶型的房屋,其中一套套內面積為24.57平方米的房屋,雖然戶型不算方正,但有一個落地窗,銷售和出租都很受追捧。但那還不是最小的,該小區內最小的一套單間配套套內面積只有22.11平方米。
地點:黃泥塝
面積:23.83平方米
優點:“五臟俱全”
缺點:暗衛
相較而言,黃泥塝的蔡小姐所居住的房屋算戶型較好的一家,該房屋雖然狹窄只有23.83平方米,但“五臟俱全”,有衛生間、廚房,還有陽臺。“適合一個人,或者戀人居住,自己居住也十分方便。”蔡小姐說,美中不足的就是衛生間沒有窗戶。
小戶型出租更劃算
據劉先生介紹,他居住的是一套套內面積為70平方米左右,兩室兩廳的房屋,按照現在的租賃行情,每月租金在1200元左右,而同一地段那種小戶型單間配套的房屋租金在800元/月左右。
此外,劉小姐有一套位于紅旗河溝的小戶型,約26平方米,在三四年前買成不到3000元/平方米,現在出租可以收到800元/月的租金。
業內人士分析認為,這種單間配套的小戶型非常適合用于過渡性住房和投資。以一號橋那處樓盤為例,即使算上小戶型單價相對較高的因素,幾年前,70平方米的總房款比20多平方米的總房款多出15萬元左右,但每月收回的租金僅多出400元。“如果用于投資,兩套20多平方米的房屋租金高過一套70平方米左右的租金,他們的總房款是相當的。”業內人士分析稱。
“小戶型是未來房地產發展的趨勢。”中原地產副總經理何偉堅表示,只是隨著社會經濟的發展,小戶型房型的升級換代,人口密度的降低,個性的張揚,以及居住舒適性的提高將會成為小戶型未來的發展方向。
今年9月,萬科集團董事長王石在江蘇的一個企業家高層峰會上表示,小戶型是未來發展的趨勢。“在新加坡、中國香港、日本東京,你會發現主套型是合理的小戶型。在香港,100平方米那就算豪華的了。但在國內,120平方米才算標間。未來,戶型會向小型化發展,這是由土地面積、人口發展和城市化進程共同決定的。小戶型的好處是空間交換成本和時間交換成本劃算。”何偉堅表示,現在的戶型都向大的方向走,但是從更長遠的角度、從社會的角度來說,小戶型才是發展趨勢。
(重慶時報記者 陳穎)
Copyright ©1999-2025 chinanews.com. All Rights Reserved